Villa moderna de dos niveles con planta baja de piedra natural, terraza superior con pérgola de madera y una amplia piscina rodeada de vegetación mediterránea.
Villa moderna de dos niveles con planta baja de piedra natural, terraza superior con pérgola de madera y una amplia piscina rodeada de vegetación mediterránea.
Estructura de hormigón armado en fase de construcción, con pilares, puntales metálicos y encofrados de madera integrados en un terreno montañoso.
Estructura de hormigón armado en fase de construcción, con pilares, puntales metálicos y encofrados de madera integrados en un terreno montañoso.
Fase de cimentación con muros de contención de hormigón armado y encofrados verticales para pilares estructurales en una parcela excavada.
Fase de cimentación con muros de contención de hormigón armado y encofrados verticales para pilares estructurales en una parcela excavada.
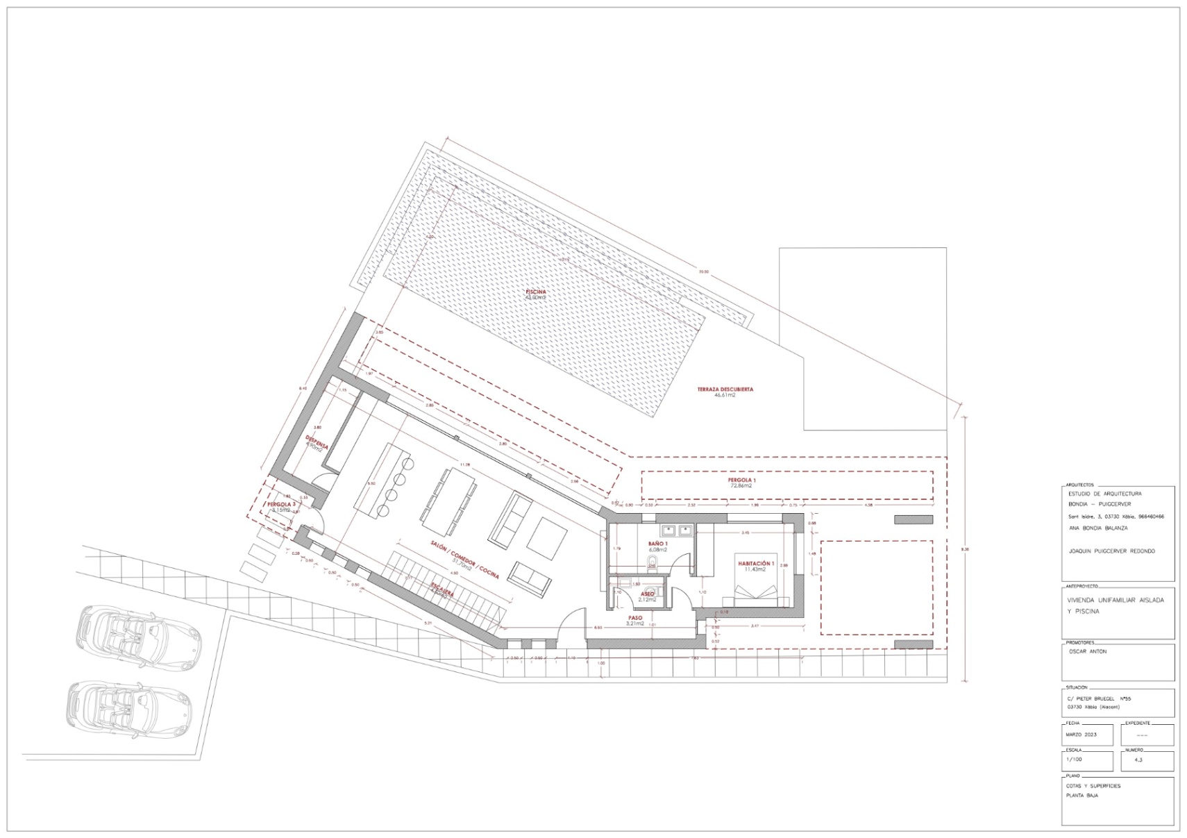
Plano arquitectónico detallado de la planta baja que muestra un salón-comedor-cocina de concepto abierto, un dormitorio, piscina y amplias zonas de terraza exterior.
Plano arquitectónico detallado de la planta baja que muestra un salón-comedor-cocina de concepto abierto, un dormitorio, piscina y amplias zonas de terraza exterior.
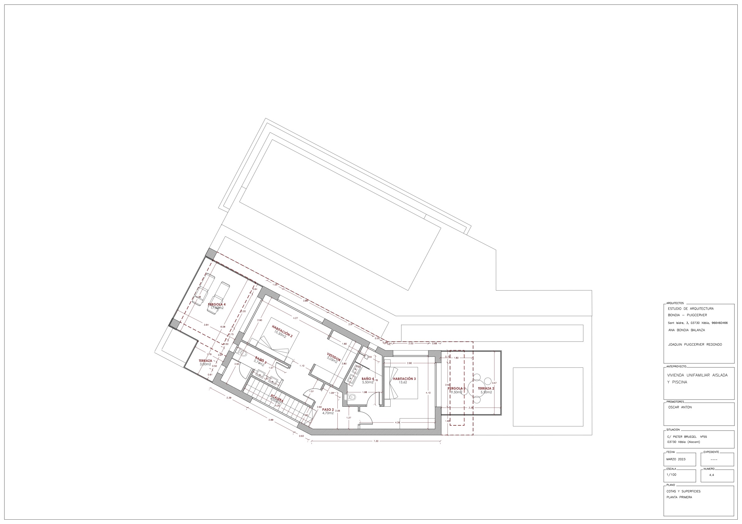
Plano técnico de la planta primera que detalla dos dormitorios con baños en suite, un vestidor independiente y amplias terrazas exteriores con pérgola.
Plano técnico de la planta primera que detalla dos dormitorios con baños en suite, un vestidor independiente y amplias terrazas exteriores con pérgola.
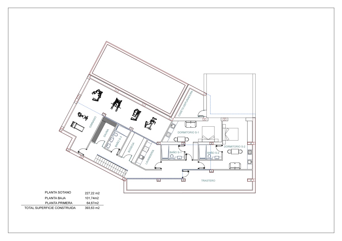
Plano técnico de la planta sótano que muestra un gimnasio privado, sauna, bodega, lavandería y dos dormitorios con baños integrados y zona de almacenaje.
Plano técnico de la planta sótano que muestra un gimnasio privado, sauna, bodega, lavandería y dos dormitorios con baños integrados y zona de almacenaje.
6

Moderna villa de obra nueva en Jávea con piscina infinita

1.850.000€
Jávea
Ref: V639
5
habitaciones
5
baños
393m²
Sup. construida mín.
1,050m²
Sup. terreno mín.
2026
Año de construcción
A
Calificación energética

Descripción

Esta excepcional propiedad de obra nueva en Jávea representa la vanguardia de la arquitectura mediterránea moderna. Distribuida en tres niveles cuidadosamente diseñados, la villa ofrece un total de 393 m² de superficie construida sobre una parcela que garantiza privacidad y vistas despejadas. La planta principal destaca por su concepto abierto, integrando un amplio salón-comedor con una cocina de diseño y lavadero independiente, conectando directamente con las extensas terrazas y la zona de la piscina. En este nivel también se encuentra un dormitorio con baño en suite y un aseo de cortesía.

La planta superior alberga dos dormitorios adicionales, incluyendo la suite principal con vestidor privado y acceso a terrazas superiores con pérgolas. El nivel del sótano es un verdadero centro de bienestar y ocio, contando con un gimnasio completo, sauna, bodega, lavandería y dos dormitorios adicionales con sus respectivos baños, ideales para invitados o personal de servicio. Los exteriores están diseñados para el disfrute máximo del clima local, con una piscina de diseño, amplias zonas de solárium y aparcamiento privado.
Aviso importante La información de esta propiedad se ofrece a título informativo y no tiene carácter contractual. Puede estar sujeta a errores, cambios de precio, omisión o retirada del mercado sin previo aviso. Para confirmar la veracidad de los datos, le recomendamos consultar con Andrea Y Olaf Inmobiliaria.

Piscina

  • Piscina privada

Exterior

  • Jardín
  • Terraza
  • Pérgola

Vistas

  • Vistas panorámicas

Interior

  • Cocina equipada
  • Cocina abierta
  • Lavadero
  • Vestidor
  • Armarios empotrados
  • Doble acristalamiento

Aparcamiento y Garaje

  • Aparcamiento privado

Edificio / Comunidad

  • Gimnasio

Encuentra su propiedad

Refina tu búsqueda a continuación

Mandato de compra: Nosotros buscamos, usted encuentra

Mandato de compra: Nosotros buscamos, usted encuentra

Servicio exclusivo de búsqueda personalizada. Con nuestro mandato de compra, le representamos en la búsqueda de su propi...

Ver más
Selecciona un tipo
Tipo de propiedad
Casa / Villas
Apartamento
Obra nueva
Terreno
Comercial
Otros
Selecciona una ubicación
Ubicación
Presupuesto
Presupuesto
Dormitorios
Habitaciones
Indiferente
Piscina
Indiferente
Baños